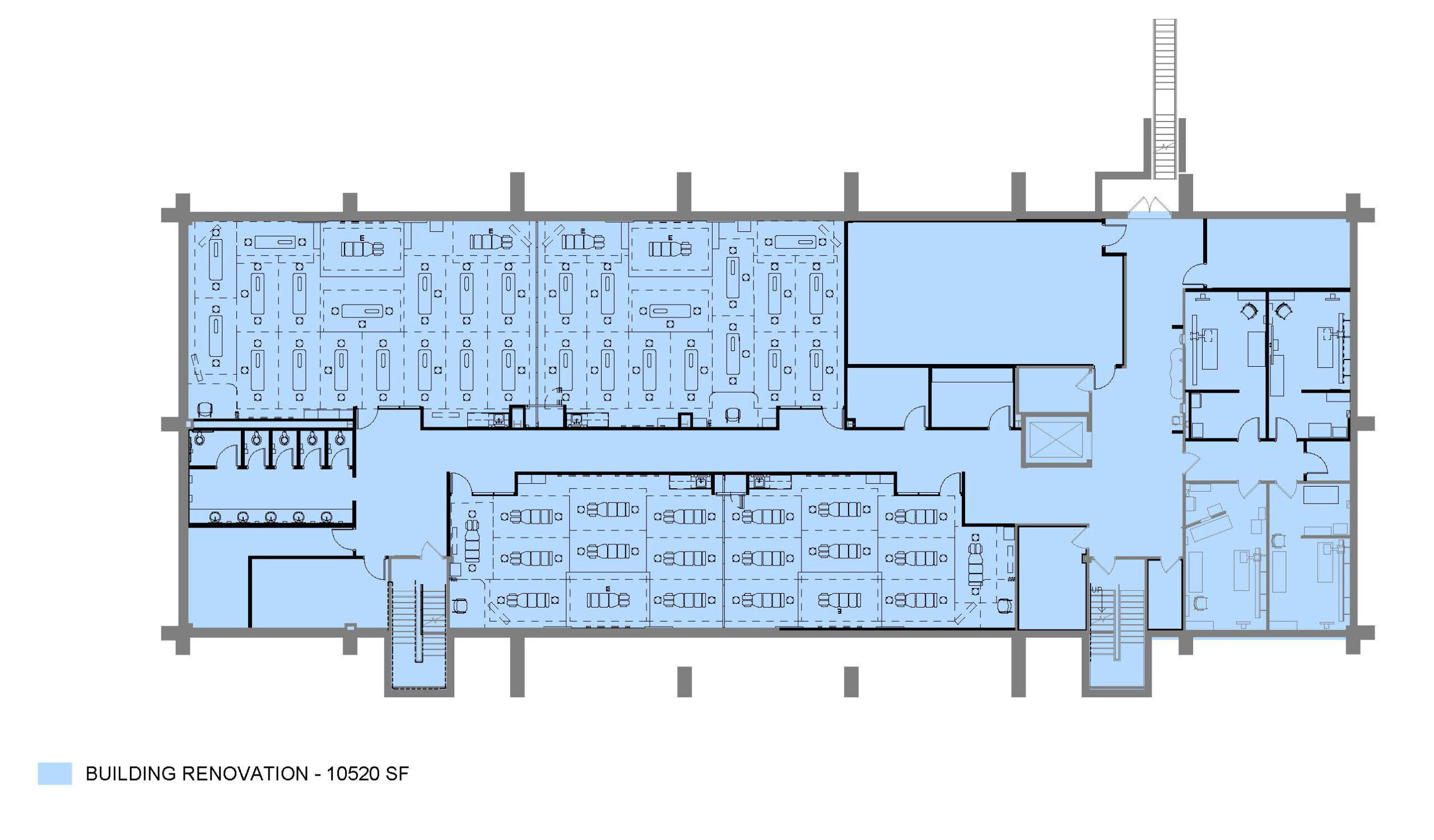
富尔科学中心
Arlan博士(1961年)和Judi Fuhr夫人慷慨的领导礼物使Logan能够投资33,426平方英尺。 面积14400平方英尺。 原命名为科学研究中心,建于1986年。 一旦完成,更新后的设施将容纳两个最先进的解剖实验室,一个成像中心,技术实验室,模拟空间,教师办公室,以及额外的学生合作和学习区域。

富尔科学中心奠基
解剖实验室
了解人体临床解剖学是捏脊和健康科学教育的重要组成部分。 通过解剖人体尸体,学生发现身体的内部运作和识别解剖结构。 富尔科学中心的新建筑和翻新将包括增加两个最先进的解剖实验室和相关的演讲圆形剧场。 这两个主动学习空间将容纳194名学生,并扩大生理学习的机会。 新的实验室空间还将包括用于标本制备和储存的额外区域。 每个实验室的最新技术也将改善学习体验。
技术的教室
富尔科学中心的新建设和扩建将适应威尼斯人app不断增长的入学人数,并为学生提供一流的学习、参与和发展设施。 改造将包括创建六个新的最先进的脊椎按摩技术教室和两个临床方法教室。 这加强了我们为学生掌握成为一名成功的脊椎按摩师所需的技能所建立的基础。 每间新教室的设计都是为了让学生掌握解剖学和生理学原理,微调技术和完美的医患互动,在经验丰富的持证教师的指导下。
学生合作区
2019年的一项校园空间利用研究发现,对学生合作和学习空间的需求日益增长。 “推进教育,改变生活”活动将为校园足迹增加重要的社区空间,为学生提供更多的合作机会。
解剖实验室露天剧场
每个解剖实验室将有一个相关的圆形剧场,可用于解剖讲座,标本检查和检举。 阶梯式座位便于观察工艺。 更新的技术使班级能够实时查看教师解剖技术,并改进了查看x射线和其他图像的途径。












