行政大楼
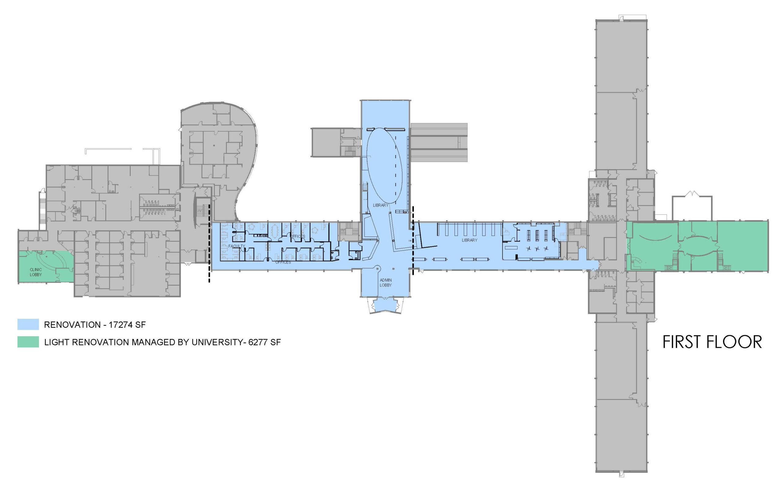
行政中心是1972年罗根买下的玛利诺神学院的一部分。 Logan对这些建筑进行了改造,以提供最新的教学,但设施已经过时,技术也在增加,设备的使用寿命即将结束。 不断增加的学生入学人数导致实验室、技术课和教员办公室人满为患。 目前,班级规模和选修课受到空间限制。 综合系统需要能够适应和发展新的技术进步,保持国家的最先进的教育,提供动手,经验学习的机会,并适应未来的需求。 改造和扩建是必不可少的,以维护威尼斯人app在脊椎按摩和健康科学教育的卓越声誉。
行政中心是1972年罗根买下的玛利诺神学院的一部分。 Logan对这些建筑进行了改造,以提供最新的教学,但设施已经过时,技术也在增加,设备的使用寿命即将结束。 不断增加的学生入学人数导致实验室、技术课和教员办公室人满为患。 目前,班级规模和选修课受到空间限制。 综合系统需要能够适应和发展新的技术进步,保持国家的最先进的教育,提供动手,经验学习的机会,并适应未来的需求。 改造和扩建是必不可少的,以维护威尼斯人app在脊椎按摩和健康科学教育的卓越声誉。